便利さと自然が調和する「大井」、生活にゆとりが生まれる
東京都品川区大井7丁目の高級不動産の土地
10秒でわかる!この土地の注目ポイント
●都心も神奈川方面もアクセス良好な好立地
●大森駅周辺は商業施設や商店街が充実、生活利便性◎
●二方道路に面した整形地、開放感と通風に優れた住環境
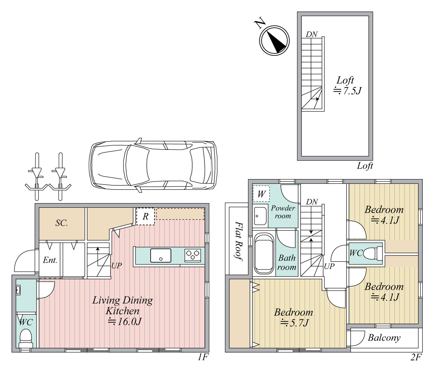
1.ご紹介の土地
そんな大井エリアの第一種低層住居専用地域にあるのが本物件。北東側の接道も5.9mあり、開放感とゆとりある敷地が特徴。2階建て6LDK+2サービスルームのプランなら、家族構成やライフスタイルに応じたゆとりある住まいを実現可能。広々としたリビングダイニング(約67.4帖)を中心に、開放感あふれる空間が広がります。仕事やレジャーに便利なエリアのため、カースペースの確保もおすすめです。各居室は8帖以上の広さを確保し、将来的なライフステージの変化にも柔軟に対応できます。2階には複数の寝室とウォークインクローゼットを備え、収納力も充実。さらに、屋上バルコニーが2か所設けられ、開放的なアウトドアスペースとしても活用可能です。収納や設備にこだわり、理想の住まいを実現できるのは、オーダーメイド住宅ならではの魅力です。とことんこだわった、夢の一軒を実現してみませんか。
ランディックスでは、土地さがしの段階からプロの建築士が設計目線でアドバイスいたします。ハウスメーカーや設計事務所のご紹介も承っておりますので、資金計画から間取りのご相談まで、安心してお任せください。
2.古の人々も愛した心地よい街「大井」
品川区の南東部に位置する「大井」は、JR京浜東北線「大森」駅の北側に広がる住宅街。駅周辺には「アトレ大森」「大森ララ」「大森駅前ビル」「Luz大森」などの商業施設が立ち並び、利便性の高さが魅力です。また、東口には100店舗以上の商店が軒を連ねる「大森銀座商店街(ミルパ)」があり、買い物環境も充実。
交通利便性も抜群で、都心だけでなく神奈川方面へのアクセスも良好。駅から少し離れると閑静な住宅街が広がり、落ち着いた住環境が整っています。多世代にわたって住みやすいエリアとして、安定した人気を誇ります。また、明治時代にアメリカの動物学者モース博士が「大森貝塚」を発見したことで、この地は日本考古学発祥の地としても知られています。現在、大森貝塚は「大森貝塚遺跡庭園」として整備されており、散策しながら縄文時代の歴史を学べる貴重な場所となっています。
さらに、大井エリアの魅力の一つは、自然を身近に感じられる環境。「大森ふるさとの浜辺公園」や「平和の森公園」など、広々とした公園が点在し、都会にいながらも四季の移ろいを感じることができます。
洗練された都市機能と、昔ながらの情緒が共存する街「大井」。このエリアが、古くから多くの人々に愛されてきた理由が、そこにあるのかもしれません。
3.「大井」の地名の由来
品川区大井6丁目にある「光福寺」の境内には、「大井の井」と呼ばれる井戸が存在します。この井戸は、親鸞の弟子であり同寺の開山である了海の誕生時に湧き出し、産湯に使われたという伝説が残っています。このことから、「大井」という地名の由来になったとする説があります。
しかしながら、実際には了海の誕生以前から「大井」という地名が存在していたとされ、真相は不明です。
4.ライフインフォメーション
不動産物件詳細
この土地は販売終了いたしました
所在地 |
東京都品川区大井7丁目
東京都品川区大井7丁目
|
交通 |
JR京浜東北線 大森駅 徒歩11分 |
権利 |
所有権 |
土地面積 |
75.01㎡ (22.69坪) |
建築条件 |
なし |
地目 |
宅地 |
用途地域 |
第一種低層住居専用地域 |
建ぺい率 |
60% |
容積率 |
150% |
道路幅員 |
北東側約5.9m、南西側約4.4m |
現況 |
古家あり、更地渡し |
引渡時期 |
相談 |
取引形態 |
仲介 |
販売区画数 |
1区画 |
防火指定 |
準防火地域 |
高度地区 |
第一種高度地区 |
その他人気の土地はこちら
街も人も洗練された吉祥寺の奥座敷に位置する整形地
| 所在地 | 東京都武蔵野市吉祥寺東町3丁目 |
| 最寄駅 | 吉祥寺 徒歩 12分 吉祥寺 徒歩 12分 吉祥寺 徒歩 12分 吉祥寺 徒歩 12分 吉祥寺 徒歩 12分 西荻窪 徒歩 17分 西荻窪 徒歩 17分 |
| 面積 | A区画:142.36㎡、B区画:142.36㎡、C区画:142.36㎡ |
教育環境が整った活気ある目黒アドレスの街
| 所在地 | 東京都目黒区大岡山1丁目 |
| 最寄駅 | 大岡山 徒歩 6分 大岡山 徒歩 6分 緑が丘 徒歩 12分 |
| 面積 | A区画:80.26㎡、B区画:80.26㎡ |
お気に入りの物件
{{ favorite.name }}
| 所在地 | {{ houseNumberText(favorite) }} |
| 最寄駅 | {{ favorite.displayRailLine }} |
| 面積 | {{ acreageText(favorite) }} |
