上質な静けさと利便性が織りなす「豊町」の特別な日常
東京都品川区豊町4丁目の高級不動産の土地
10秒でわかる!この土地の注目ポイント
●商店街が連なる街並みと、戸越公園駅へも歩けるロケーション
●大名庭園の面影を残す「戸越公園」や「文庫の森」が身近
●再開発が進むエリアで、暮らしやすさと将来性を実感できる街
1.ご紹介の土地
今回ご紹介するのは、品川区豊町4丁目の限定一区画。建築条件はございませんので、お好みの工務店やハウスメーカーで理想の住まいを建てることができます。
最寄りは東急大井町線「戸越公園」駅より徒歩6分、JR横須賀線・湘南新宿ライン「西大井」駅より徒歩9分。品川まで13分、渋谷まで23分、新宿まで28分と都心へのアクセスに恵まれ、大井町駅を経由すれば川崎・横浜方面へもスムーズに移動可能な、通勤・通学に便利な立地です。
戸越公園周辺は4つの商店街が広がり、下町らしいにぎわいと日常の利便性を兼ね備えています。駅から少し離れると閑静な住宅街や緑豊かな公園が点在し、落ち着いた住環境が広がります。細川家下屋敷跡を整備した「戸越公園」や旧三井文庫跡地を活用した「文庫の森」では、四季の自然を身近に感じることができます。また、戸越公園駅周辺の高架化計画(戸越公園駅周辺まちづくりビジョン)が進行しており、今後さらに利便性や快適性が高まることが期待されるエリアです。
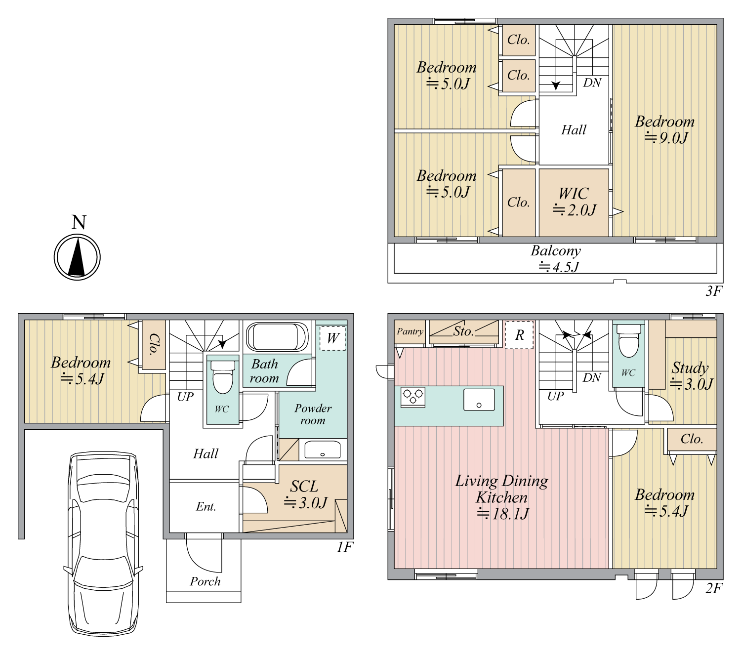
ゆとりある間口約9.6mの本物件には、5LDK+書斎+インナーガレージのプランはいかがでしょうか。
1階には5.4帖のベッドルームと水回りを設置。玄関横にシューズインクローゼットもございます。
書斎はリモートワークなどで活用できるスペースに。
2階は5.4帖のベッドルームと18帖のLDK。どちらも南向きのためあたたかな光が差し込みます。
3階は主寝室を含む3部屋設置のフロア。お子様のお部屋も確保できる多室設計となっております。
9帖の主寝室はウォークインクローゼット付き、シングルベッド2台設置可のゆとりある空間。
その他、2台駐車+LDK24帖プランなどご希望に応じた間取りをご検討いただけます。
ランディックスでは、土地探しの段階から一級建築士が設計の視点でアドバイスいたします。ハウスメーカーや設計事務所のご紹介も可能ですので、資金計画から間取りのご相談まで安心してご依頼ください。
2.品川区の再開発計画で注目される「豊町」
この地域は品川区の中央部に位置し、東急大井町線「戸越公園」駅の北側を中心に広がっています。町域は「J」の字に似た形をしており、周囲には東急大井町線・都営浅草線「中延」駅、JR横須賀線・湘南新宿ライン「西大井」駅など複数の駅が点在。JR・私鉄を自在に利用できる交通利便性が大きな魅力です。
一方で、豊町のもうひとつの顔は庶民的で温かみのある商店街。戸越公園駅の北側には「戸越公園中央商店街」「宮前商店街」、南側には「戸越公園駅前南口商店会」「ゆたか商店会」と、4つの商店街が広がります。隣の中延駅には大正時代から続く「中延商店街」、徒歩圏には東京を代表する「戸越銀座商店街」もあり、買い物や食べ歩きが楽しめるのは大きな魅力です。
さらに、周辺には自然と触れ合えるスポットも点在します。肥後国(熊本)藩主・細川家の下屋敷跡を整備した「戸越公園」では、池や渓谷、滝を巡る回遊式庭園の風景を楽しむことができ、梅や桜の季節には多くの人でにぎわいます。旧三井文庫跡地に整備された「文庫の森」には、水辺の広場をはじめ4つのゾーンがあり、ピクニックやお花見などに親しまれています。
また、戸越公園駅を含む約1.1kmの区間で進められている高架化事業(戸越公園駅周辺まちづくりビジョン)により、6か所の踏切が順次解消される予定です。安全性や利便性がさらに高まることで、街の魅力は一層深まっていくでしょう。
3.「豊町」の地名の由来
現在の品川区「二葉」と「豊町」にあたる地域は、江戸時代初期には「蛇窪村」と呼ばれていました。その後、蛇窪村は上蛇窪村と下蛇窪村に分かれ、大字として昭和初期までその名が残っていたとされています。昭和7年にこの地域が東京市へ編入される際、「蛇窪」の名称は廃され、上神明町・下神明町へと改称。さらに昭和16年の町名改正により、上神明町は「豊町」、下神明町は「二葉町」となりました。
「豊町」の由来は明確ではありませんが、「蛇」が付く旧地名を避けて「神」が付く上神明町に改められた経緯を踏まえると、縁起の良い文字として「豊」を用いた可能性が考えられます。
4.ライフインフォメーション
不動産物件詳細
この土地は販売終了いたしました
所在地 |
東京都品川区豊町4丁目
東京都品川区豊町4丁目
|
交通 |
東急大井町線 戸越公園駅 徒歩6分 東急大井町線 下神明駅 徒歩9分 JR横須賀線 西大井駅 徒歩10分 JR湘南新宿ライン 西大井駅 徒歩10分 |
権利 |
所有権 |
土地面積 |
未公開物件のためお問い合わせください |
建築条件 |
なし |
地目 |
宅地 |
用途地域 |
第一種住居地域 |
建ぺい率 |
60% |
容積率 |
168% |
道路幅員 |
南側約4.2m |
セットバック |
不要 |
私道負担 |
なし |
現況 |
更地渡し |
引渡時期 |
相談 |
取引形態 |
仲介 |
販売区画数 |
1区画 |
防火指定 |
準防火地域 |
高度地区 |
第二種高度地区 |
その他人気の土地はこちら
洗足池の潤いと緑に囲まれた「上池台」ゆとりの邸宅地
| 所在地 | 東京都大田区上池台二丁目 |
| 最寄駅 | 洗足池 徒歩 4分 長原 徒歩 7分 |
| 面積 | A区画:68.14㎡、B区画:68.14㎡ |
日常利便を掌中に、上質な余白を纏う暮らし
| 所在地 | 東京都品川区豊町5丁目 |
| 最寄駅 | 戸越公園 徒歩 7分 西大井 徒歩 7分 西大井 徒歩 7分 中延 徒歩 8分 中延 徒歩 9分 下神明 徒歩 12分 荏原中延 徒歩 14分 |
| 面積 | 121.34㎡ |
武蔵野の特等席「西荻北」で謳歌するゆとりと安らぎ
| 所在地 | 東京都杉並区西荻北1丁目 |
| 最寄駅 | 西荻窪 徒歩 12分 西荻窪 徒歩 12分 荻窪 徒歩 18分 荻窪 徒歩 18分 荻窪 徒歩 18分 |
| 面積 | 115.82㎡ |
お気に入りの物件
{{ favorite.name }}
| 所在地 | {{ houseNumberText(favorite) }} |
| 最寄駅 | {{ favorite.displayRailLine }} |
| 面積 | {{ acreageText(favorite) }} |
