成熟した住宅街「梅里」に暮らす喜び
東京都杉並区梅里2丁目の高級不動産の土地
10秒でわかる!この土地の注目ポイント
●「新高円寺」駅徒歩5分の好立地
●JR高円寺駅も徒歩圏内、利便性と住環境を両立
●3階建て5LDK検討可能
1.ご紹介の土地
今回ご紹介するのは杉並区梅里2丁目の限定一区画。建築条件付き売地ではございませんので、お好きな工務店・ハウスメーカーでオーダーメイド住宅を建てられます。本物件は、東京メトロ丸ノ内線「新高円寺」駅より徒歩5分の場所に位置し、新宿まで直通14分、東京駅まで直通31分でアクセスできる交通利便性の高い立地。JR「高円寺」駅へも徒歩16分と、TPOに応じた駅の使い分けが可能です。また、周辺には青梅街道や環七通りといった幹線道路が通っており、車移動の利便性も高いエリアといえるでしょう。
最寄り駅の新高円寺駅は、アーケード商店街「ルック商店街」と「パル商店街」を通じて高円寺駅エリアとつながっており、日々の買い物や食事にも便利なロケーション。活気のある街の利便性と、住宅街の穏やかさが両立した魅力的な住環境が広がっています。
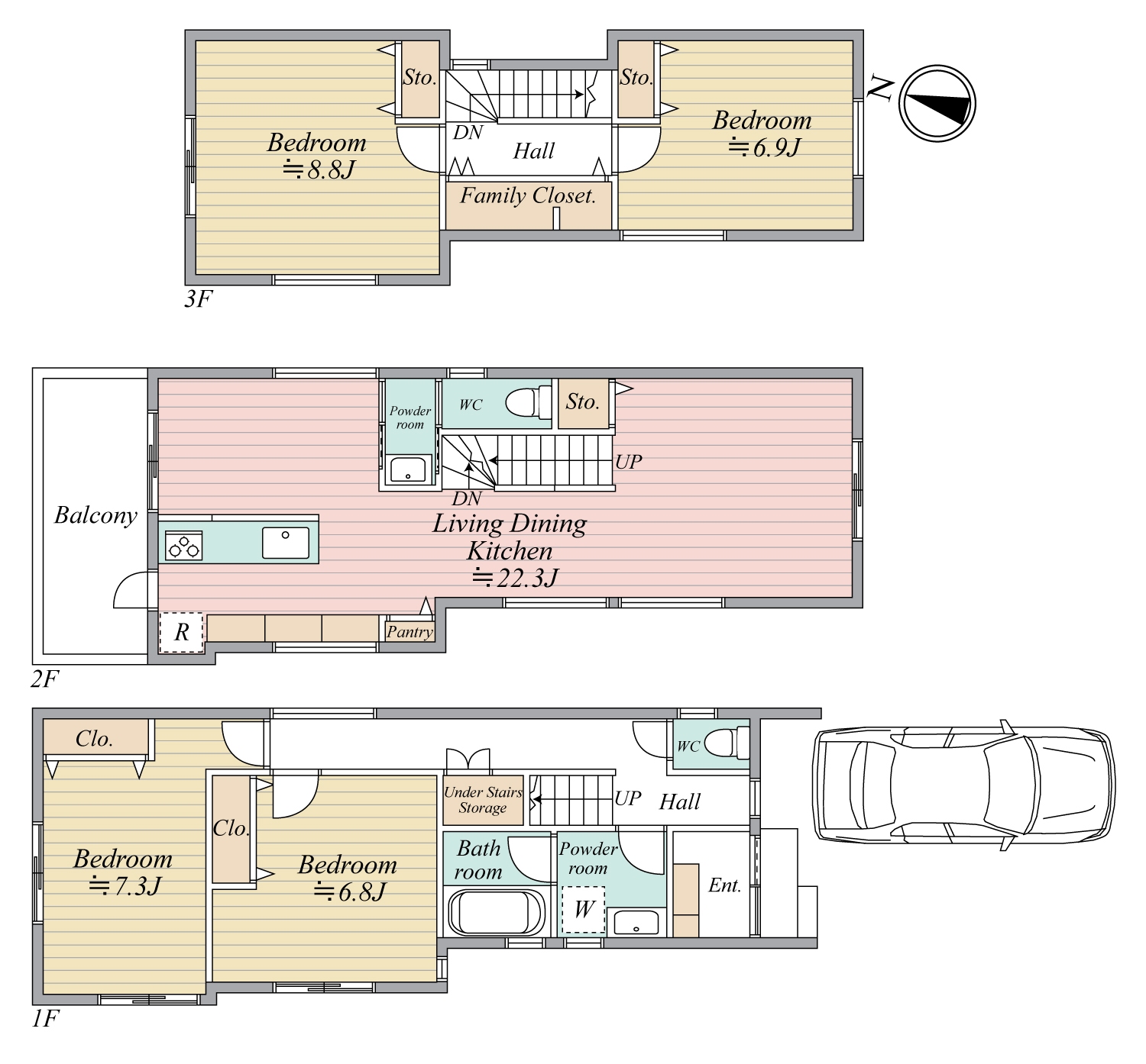
本物件では、3階建て5LDK+ガレージのプランをご提案。1階には6.6帖と7.3帖の洋室を2室配置し、2階には約25帖のLDKと7.3帖の洋室が広がります。さらに3階には、約10.5帖と約10.7帖の広々とした洋室を2室確保。各居室に収納を備え、暮らしの快適さにも配慮されています。
ランディックスでは、土地探しの段階からプロの建築士が設計目線でアドバイスいたします。建築会社のご紹介も承っておりますので、資金計画から間取りのご相談まで、安心してお任せください。
2.寺社仏閣が点在する落ち着いた風情漂う「梅里」
杉並区の中東部に位置する「梅里」は、東京メトロ丸ノ内線「新高円寺」駅とJR「高円寺」駅の間に広がる住宅街。両駅間を結ぶ「パル商店街」と「ルック商店街」には、昔ながらの個人商店や個性的な飲食店が軒を連ね、散策しながら買い物や食事を楽しめる街です。並行して走る「東南通り」は、「東京高円寺阿波おどり」の会場としても知られ、地域の活気を体感できます。
街のもうひとつの特徴は、寺社仏閣が点在する落ち着いた街並み。真盛寺や西方寺など、歴史ある寺院が街に静謐な空気をもたらしています。さらに、地域イベント「梅里まつり」や、梅の名所として知られる「梅里公園」、善福寺川沿いの「和田堀公園」など、自然とふれあえるスポットも充実。
利便性と落ち着いた住環境がバランスよく整った「梅里」は、世代を問わず暮らしやすさを実感できる街といえるでしょう。
3.「梅里」の地名の由来
「梅里」という地名は、1968年(昭和43)の住居表示実施によって新たに誕生した名称です。それ以前、この地域は「馬橋」「高円寺」「松ノ木町」「堀之内」などの町に分かれていました。当初、行政側は「堀之内」や「成田」といった隣接エリアに編入する案を提示しましたが、住民からは反対の声が上がりました。というのも、「堀之内」には斎場、「成田」には成田山を連想させるため、好ましくないと感じた住民が多かったのです。
そこで住民側から、青梅街道沿いの「里」という立地の特徴にちなんで「梅里」という新しい地名が提案され、最終的にこれが採用されることになりました。地域の人々の声を反映して誕生した、想いのこもった地名といえるでしょう。
4.ライフインフォメーション
| 区立堀ノ内小学校 | 約357m(徒歩約5分) |
| 区立松ノ木中学校 | 約1220m(徒歩約16分) |
| ファミリーマート梅里二丁目店 | 約46m(徒歩約1分) |
| クイーンズ伊勢丹新高円寺店 | 約432m(徒歩約6分) |
| かっぱ公園 | 約74m(徒歩約1分) |
不動産物件詳細
この土地は販売終了いたしました
所在地 |
東京都杉並区梅里2丁目
東京都杉並区梅里2丁目
|
交通 |
東京メトロ丸ノ内線 新高円寺駅 徒歩5分 東京メトロ丸ノ内線 南阿佐ケ谷駅 徒歩13分 |
権利 |
所有権 |
土地面積 |
未公開物件のためお問い合わせください |
建築条件 |
なし |
地目 |
宅地 |
用途地域 |
近隣商業地域 |
建ぺい率 |
80% |
容積率 |
300% |
道路幅員 |
南側約14.0m |
セットバック |
なし |
私道負担 |
北側通路(2/8持ち分有) |
現況 |
更地渡し |
引渡時期 |
相談 |
取引形態 |
仲介 |
販売区画数 |
1区画 |
防火指定 |
準防火地域 |
高度地区 |
第二種高度地区 |
備考 |
その他人気の土地はこちら
ゆとりと彩、そして潤い――「東雪谷」で実現する理想の暮らし
| 所在地 | 東京都大田区東雪谷五丁目 |
| 最寄駅 | 石川台 徒歩 12分 洗足池 徒歩 16分 |
| 面積 | B区画:107.69㎡、C区画:117.34㎡ |
静寂と賑わいが共存する「荻窪」の贅沢な暮らしを享受
| 所在地 | 東京都杉並区荻窪2丁目 |
| 最寄駅 | 荻窪 徒歩 11分 荻窪 徒歩 11分 荻窪 徒歩 11分 南阿佐ケ谷 徒歩 20分 |
| 面積 | A区画:139.67㎡、B区画:139.67㎡ |
お気に入りの物件
{{ favorite.name }}
| 所在地 | {{ houseNumberText(favorite) }} |
| 最寄駅 | {{ favorite.displayRailLine }} |
| 面積 | {{ acreageText(favorite) }} |
